هنرستان دخترانه شهید ایرج فیضی کرمانشاه در شهرک 22 بهمن و در خیابان دوازدهم حد فاصل میدان 17 شهریور و چهار راه چاله چاله قرار دارد .
این مدرسه در دهه 60 ساخته شده و ساختمانهای آن در حال تخریب میباشند .
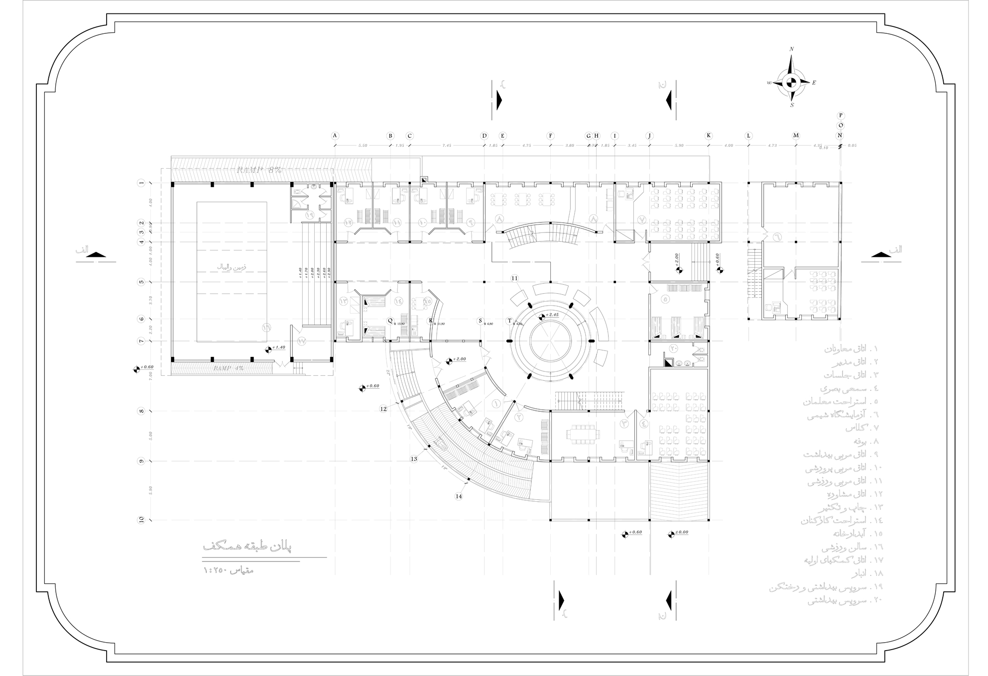
مساحت زمین مدرسه در حدود 2500 متر مربع بود که دست طراح را تا حدودی بسته گذارده زیرا میبایست در این زمین محدود هنرستان 8 کلاسه دخترانه طراحی گردد .
با توجه به اشرافیت ساختمانهای بلند مرتبه اطراف پروژه و محرمیت مدرسه دخترانه که بسیار مهم بود سالن ورزشی جهت استفاده دانش آموزان طراحی گردید . همچنین در فضاهای داخلی فضای وسیع گفتگو و تعامل ایجاد شده .
همچنین در اضلاع جنوبی و غربی زمین پروژه 4 الگوی کاو کوچک(برای تجمعات تا 4نفره)و 4 الگوی کاو بزرگ(برای تجمعات تا 10 نفره) طراحی شد .
توضیح اینکه اسلاید های ارائه شده مربوط به طراحی فاز 1 پروژه میباشد .
روند طراحی :
همه میدانیم هندسه یکی از اصولی بوده که معماران ایران زمین از آن به عنوان نقطه ابتدایی طرح خود الهام میگرفتند ، بدون شک نمود هندسه قوی طرحهای ایشان بوده که معماریی چنان فاخر آفریده که براستی هر انسان اندیشمندی را به خود فرا خوانده و مبهوت خویش میسازد .
چنانکه معمار استونی تبار لویی کان را بدون هیچ تعلق خاطری در جلو مسجد شیخ لطف الله به گریستن وا میدارد .
از اینرو تصمیم گرفتم همانند پیشینیان خود طراحی را با هندسه شروع کنم .
ابتدا با الهام از ساختار معماری هخامنشیان که تکرار یاخته های مربعی شکل است دو مربع 16*16 متر را کنار هم قرار دادم ، سپس مستطیل طلایی مربع سمت راست را ترسیم نمودم . به مرکز گوشه مستطیل طلایی دایره ای به شعاع طول ضلع مربع ترسیم کردم و سپس مستطیلی بر این دایره محاط نمودم . بدین ترتیب ساختاری برای شروع طراحی شکل گرفت .
در ادامه طراحی با توجه به مساحتهای مورد نیاز طرح به این ساختار شکل گرفته قسمتهایی افزوده و قسمتهایی نیز کاسته شد .


